
水冷型恒溫恒濕型空調機H11 H11H
所屬分類:水冷型恒溫恒濕空調機
產品簡介:用途:一 產品簡介及特點 1 簡介 杭井牌恒溫恒濕空調機是杭井公司積累多···
** 產品簡介及特點
杭井**恒溫恒濕空調機是杭井公司積累多年實踐經驗設計而成的機組。機組采用智能化的控制模式,實現對機組制冷、除濕、加熱、加濕等功能,從而達到對室內環境溫、濕度的精確控制。廣泛適用于電子工業、儀器儀表、印刷廠、通訊設備、供配電站等對空氣溫、濕度精度要求較高的場合。
2 產品特點
◆ 規格眾多
本系列設有3HP~100HP共20個規格。有風冷、水冷兩種冷卻方式,滿足客戶不同使用環境的需求。
◆ 設計靈活
輔助加熱方式(電加熱,蒸汽加熱、熱水加熱)及送回風形式多種多樣,便于匹配組合。有新風引入功能,能夠有效改善空氣品質。
◆ 智能控制
人性化的微電腦控制系統,操作簡單方便。高精度的PLC控制技術,多**能量調節,室內溫濕度波動小, 溫度精度達±0.8°C,濕度精度±5%。
◆ 外形**觀
機組結構緊湊,外形**觀,便于安裝、運輸及維護。
◆ 品**配件
壓縮機全部采用高性能渦旋式壓縮機,送風機選用低噪音高效率離心式風機,制冷系統配件皆來自**際知**品**,性能穩定。
◆ 高效節能
單系統機組設置除濕電磁閥,使機組在低負荷運行時,能保持較佳的除濕效果,尤其適合潮濕多雨的霧雨季節,精確控制,高效節能,節省再加熱功耗;多系統機組具有多**能量調節。
◆ 結構**化
結構**化,保證機組良好的密封性、隔熱性和低漏風率。機組調試、維護均可**面進行,操作**為方便。
◆ 多重保護
機組設有多重安全保護,如高低壓力、壓縮機過流、過載等,確保機組安全可靠。
◆ 特殊處理
根據使用場合的具體要求,機組可做防爆防腐處理。可廣泛用于石油、化工、冶金、軍工、醫藥等行業存在或可能存在ⅡA、ⅡB**,T1~T4組可燃性氣體、蒸氣與空氣混合形成的爆炸性氣體混合物的1~2區場合。
3、執行標準
本產品執行**家標準:
① GB/T 17758-1999 《單元式空氣調節機》。
② GB 19576-2004《單元式空氣調節機能效限定值及能源效率等**》
二 產品匯總表

三 **義工況

四 運行范圍
制冷時,室內zui高進風溫度32℃,zui低進風溫度18℃;
室外zui高進風溫度43℃,zui低進風溫度18℃。
水冷機zui高進水溫度34℃,zui低進水溫度20℃,承受zui高水壓0.4MPa。
機組長時間在**出上述范圍運行,會導致損壞,如客戶確有需要,請在訂貨時說明。
五 產品型號表示方法

型號示例
(1)HF52:表示制冷劑為R22,制冷量為52.3kW的風冷冷風型恒溫恒濕機,壓縮機置于室外。
(2)H88H:表示制冷劑為R407C,制冷量為89.8kW的水冷冷風型恒溫恒濕機。
(3)SW10:表示壓縮機功率為10HP的風冷室外機,壓縮機置于室外。
(4)SW-(5×2)N:表示壓縮機功率為10HP(2個5HP系統)的風冷室外機,壓縮機置于室內。
六 送回風方式
七、性能參數表
附錄1 H系列水冷冷風型恒溫恒濕空調機、HF系列風冷冷風型恒溫恒濕空調機(R22)


附錄2 HH系列水冷冷風型恒溫恒濕空調機、HFH系列風冷冷風型恒溫恒濕空調機(R407C)




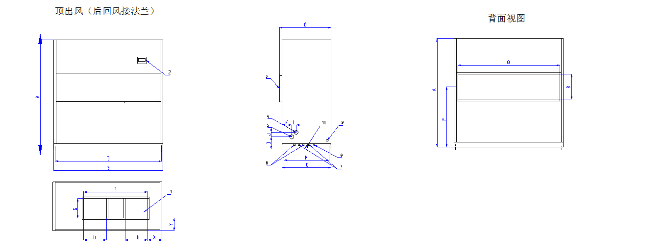
八 外形及空間安裝尺寸








九 安裝注意事項

十 訂貨參考事項
1、本樣本中技術參數中的制冷量、風量、機外靜壓、加濕量、加熱量等數據如不能滿足客戶要求,請與我公司聯系確認,認可后請在訂貨技術協議書中注明。
2、壓縮機標準配置為品**渦旋壓縮機,如客戶有其它需求,請與我公司聯系確認,認可后請在訂貨技術協議書中注明。
3、機組加熱器標準配置為電加熱形式。本公司可為客戶提供其它電加熱量或加熱形式(如熱水加熱、蒸汽加熱)的機組,請與我公司聯系確認,認可后請在訂貨技術協議書中注明。
4、加濕器標準配置為進口電**式加濕器,如需變更以上配置,請在訂貨時加以注明。
5、機組過濾器濾料標準配置為雙層尼龍網,如需其它濾料過濾器請在訂貨時注明。
6、本樣本提供的技術參數值均為**義工況下的數據,僅供參考,建議使用時應根據實際工況進行修**,請參考附錄。
7、機組制冷劑標準配置為R22、R407C,如需用R134a,對應的性能參數請咨詢本公司,確認后請在訂貨技術協議書中注明。
8、機組常規為左側出管(面對機組操作面),如需其它出管方式,請在訂貨技術協議書中注明。
9、若風冷機配管管長(單程)**過30m,需作為非標設計,請**與我公司聯系確認,認可后請在訂貨技術協議書中注明。
10、若機組需做防爆處理,請與我公司聯系確認,認可后請在訂貨技術協議書中注明。
11、機組出廠時自帶制冷劑,風冷型機組制冷劑充注于室外機。
12、所有機組外部的管道部件不包括在機組的供貨范圍,由用戶自行籌備。如客戶有其它特殊要求,訂貨前請簽訂技術協議書。




b. 彎頭和存油彎等效長度表,單位m。







